51 fotos
Apartamentos à venda em Curitiba, Água Verde
- 265.7 m²
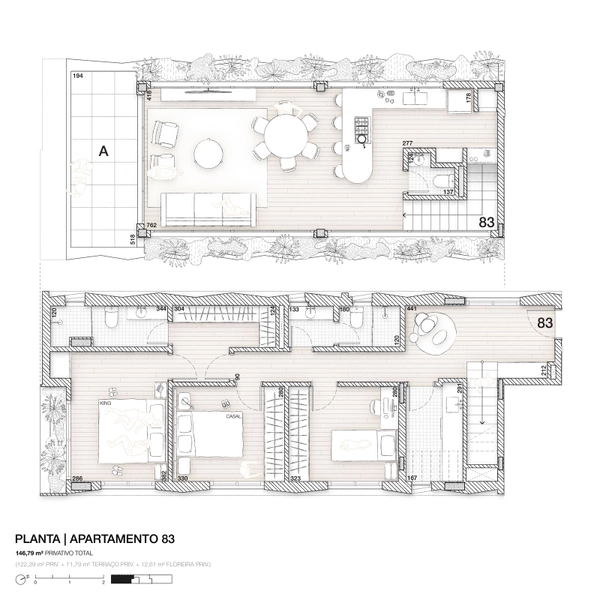
- 146.79 m²
- 146.79 m²
- 3 dormitórios
- 1 suíte
- 3 banheiros
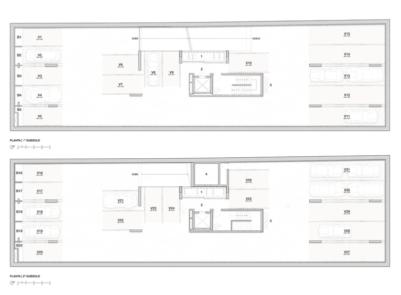
- 2 vagas
R$ 2.518.916








